Contemporary Architecture

Retail Shops

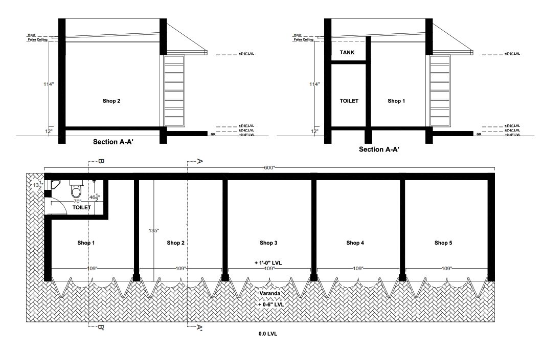
Brief: Five Retail Shops Such as Barbar,tailor,Vegetable,Glosary and Fruit Shop with one common toilet:

Concept: Less is More. Making the punctures to a rectangular block with a linear Cantiliver.

CLIENT:

Indian Army

Area:

750 Sq.ft

PLAN
SHARE THIS