Commercial Interior.

National institute of oceanography

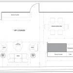
Brief: Design a Director’s office-202 sq.ft ,Executive Ofiice 345sq.ft- , Conference Room-286 sq.ft, Vip Lounge-500Sq.ft

Director's Office

Executive Office

Meeting Room

VIP Lounge

CLIENT:

National institute of oceanography

Plot Area:

1330 SQ.ft Approx

SHARE THIS